ADA Prefabricated Cabins at Tiny Hive
ADA Cabin - Honeysuckle Pine
This beautiful ADA prefabricated cabin has the following:
1 Bed / 1 Bath
16’x32′
512 SF
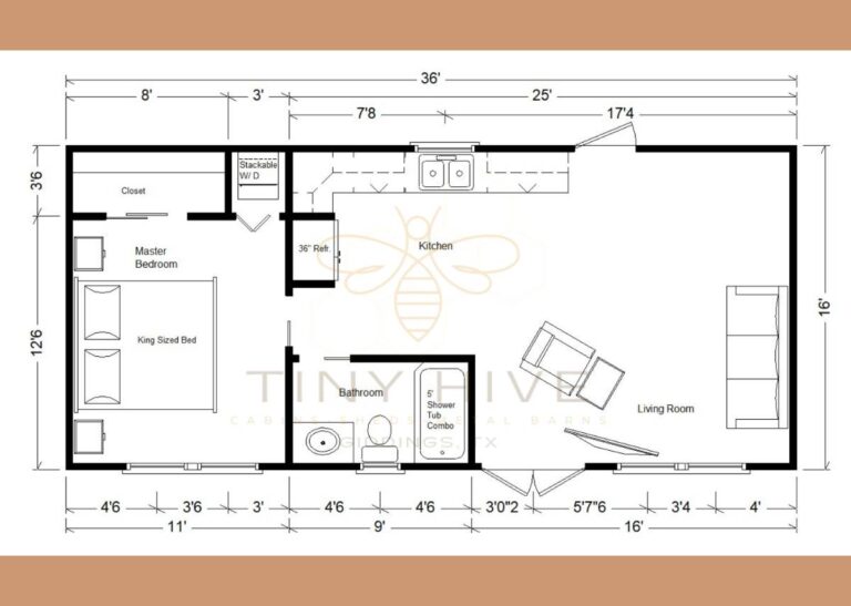
ADA Cabin - Starry Eyes
This beautiful finished ADA-compliant cabin has the following:
1 Bed / 1 Bath
16’x36′
576 SF
Take a tour with us through this beautiful 16×24 ADA Cabin.
Our ADA-compliant cabins offer accessibility, safety, comfort, independence, peace of mind, and more!
Be sure to subscribe to our channel!
Frequently Asked Questions About ADA Cabins
What does ADA-compliant mean for Tiny Hive cabins?
ADA-compliant means our cabins follow the Americans with Disabilities Act accessibility guidelines. That includes features like wide doors for wheelchairs, ramps instead of stairs, and bathrooms designed for easy use. These details make the cabins comfortable and accessible for everyone.
What sizes and floor plans are available?
We currently offer models such as the Honeysuckle Pine (16′ × 32′, 1 bed/1 bath, 512 sq. ft.) and the Starry Eyes (16′ × 36′, 1 bed/1 bath, 576 sq. ft.). Additional layouts and custom options may be available depending on your needs.
Can I customize my ADA cabin?
Yes. You can choose different finishes, adjust layouts within structural limits, or even stop the build-out early if you’d like to complete the interior yourself. We’ll walk you through your customization options during the order process.
Are interior finishes included in Rent-to-Own?
No. Rent-to-Own only applies to the cabin shell. Interior finishing—such as drywall, flooring, or bathroom fixtures—is considered aftermarket work and must be purchased separately.
How long does delivery and setup take?
Delivery timelines vary based on location, site preparation, and customizations. Once your cabin is ordered, our team will give you an estimated delivery and setup schedule.
Request Information
Pricing Disclaimer
Please note that prices mentioned are subject to change based on the customization of the shell and interior finishes. Clients have the option to halt the build-out process at any time if they wish to complete it themselves. Please ask our sales team to go over the terms and conditions of a cabin build out for more information on customizing the finish out process. Clients are required to pay for all services provided, and the building will be delivered and set up accordingly. The prices mentioned do not include delivery or set-up; they only cover the cost of the building itself. The customer is responsible for connecting utilities once the project is completed. It is important to note that Tiny Hive, LLC does not offer in-house financing for buildings with interior work. The monthly payment estimates for the Rent To Own program are only applicable to the shell of the building from Derksen Portable Buildings. Any interior work is considered aftermarket and does not qualify for the Rent To Own program offered by Derksen.
Tiny Hive coordinates installations through local, independent contractors. Photos shown may include prior work by those contractors and/or licensed stock from Derksen, Safeguard, Tree Frogs and/or Lee County Farmers Market. We do not claim ownership of third-party images; all rights remain with their owners. To report a photo or request removal, contact us.


















